LS型螺旋輸送機優勢特點
新鄉奧創機械廠專業生產LS型螺旋輸送機,螺旋輸送機可分有軸螺旋與無軸螺旋;奧創機械廠主要生產的是有軸螺旋輸送機;外殼體、葉片的材質:碳鋼居多,特殊物料采用不銹鋼;咨詢LS螺旋輸送機價格,需用戶提供參數:如物料名、粒度、物料溫度、輸送量、輸送長度,才好提供用戶價格和報價;
LS型螺旋輸送機應用領域
LS型螺旋輸送機適用于細干粉、小顆粒、或有30%含水了量的顆粒物、小塊狀物料等,LS型螺旋輸送機輸送能力大,運輸穩定、不易卡料、輸送均勻、廣泛應用在化工、建材、冶金、礦山、電力等部門;LS型螺旋輸送機不宜輸送黏性物料,如污泥、生活垃圾等纏繞性的物料,因奧創機械廠不生產無軸螺旋輸送機,只生產有軸螺旋輸送機。

LS螺旋輸送機產品介紹
LS螺旋輸送機也就是U型螺旋輸送機,是GX螺旋輸送機的升級版,螺旋輸送機可分有軸螺旋與無軸螺旋;有軸螺旋輸送機;外殼體、葉片的材質:碳鋼居多,特殊物料采用不銹鋼;咨詢LS螺旋輸送機價格,需用戶提供參數:如物料名、粒度、物料溫度、輸送量、輸送長度,才好提供用戶價格和報價;LS型螺旋輸送機根據輸送物料顆粒度、輸送量、輸送距離,進行合理選型設計生產,做到不卡料、不架拱、出料順暢。
LS螺旋輸送機的電機驅動可以用直連式,也可以采用鏈條連接式LS型螺旋輸送機是GX型螺旋輸送機的更新換代產品,是散裝粉狀物料的理想輸送設備,它提供的封閉式輸送,能防止粉狀物料溢出、揚塵,也是環保非常實用的環保設備;LS型螺旋輸送機可以從一個或多個入口添加物料,使用非常方便。LS型螺旋輸送機既可以水平輸送物料也可以傾斜輸送物料,當空間允許,這是一個非常經濟的提升輸送設備,但是隨著傾角的增加,處理量會下降。
LS型螺旋輸送機的應用范圍
LS型螺旋輸送機適用于細干粉、小顆粒、或有30%含水了量的顆粒物、小塊狀物料等,LS型螺旋輸送機輸送能力大,運輸穩定、不易卡料、輸送均勻、廣泛應用在化工、建材、冶金、礦山、電力等部門;LS型螺旋輸送機不宜輸送黏性物料,如污泥、生活垃圾等纏繞性的物料,因奧創機械廠不生產無軸螺旋輸送機,只生產有軸螺旋輸送機。
螺旋輸送機可以輸送炭黑、石墨粉、石灰粉、化肥、石子等
LS型螺旋輸送機工作環境溫度通常為-20~40℃,輸送物料的溫度一般為-20~80℃,LS型螺旋輸送機適宜水平和小傾角布置,傾角以不超過15°為宜,如傾斜角度過大請選用GX系列管式螺旋輸送機,或與我公司技術部門聯系進行單獨設計。
一、LS型螺旋輸送機有七種規格:螺旋直徑:150、200、250、300、400、500、600;
二、 十種標準轉數(數/分):20、30、35、45、60、75、90、120、150;
三、 螺旋機長度:從3米起到30米止,輸送機長度可自由選擇。
咨詢LS型螺旋輸送機的用戶,在采購前提供以下參數:
1、如果你是更換舊LS型螺旋輸送機,需要提供法蘭(圓形或方形),法蘭(外徑、內徑、法蘭孔中心距),進出料口距離尺寸,是否有軸或無軸等。如果是新安裝U型螺旋輸送機可以忽略這些參數。
2、需要提供用戶安裝現場工況、物料名稱、物料粒度、物料是否有硬度、物料是否有粘稠度、物料溫度、進出口距離及輸送量等一些參數,奧創機械廠根據參數為用戶提供合理選型,以達到需求。
LS型螺旋輸送機價格取決于安裝工況、法蘭口徑尺寸大小、進出口距離、輸送量大小、物料溫度、物料顆粒度大小、物料是否有腐蝕性(是否采用不銹鋼材質)、物料含水量、安裝傾斜角度、輸送長度等參數。我們可以根據用戶的參數來選擇U型螺旋輸送機的殼體,軸等部位的材質(碳鋼或不銹鋼),材質是影響U型螺旋輸送機價格的因素之一;根據用戶的輸送量來配置電機、減速機功率大小及輸送管的直徑;這兩項是影響U型螺旋輸送機的價格主要因素。
煤顆粒專用U型螺旋輸送機材質
1、殼體:碳鋼為主、其次不銹鋼
2、螺旋主軸:45號鋼、可做(不銹鋼)
3、螺旋葉片:碳鋼、可做(不銹鋼)
4、吊軸承架:鑄鐵
5、兩頭端蓋:碳鋼、可做(不銹鋼)
6、聯軸器:45號鋼
7、減速機殼體:鑄鐵
8、底座:碳鋼
9、殼體襯板:耐磨板
LS型螺旋輸送機結構
驅動部位:三項異步電機或變頻電機;
減速機部位:擺線針輪減速機或齒輪減速機;
聯動部位:直連式聯軸器或鏈輪鏈條;
箱體部位:殼體或加裝襯板、螺旋軸(螺旋葉片)、吊軸承、兩端軸承、進出料口、殼體蓋板等;
底部:底座、支架。
螺旋輸送機可以設計或卸箱是粘上塵垢的機件加以清理;
相鄰機殼法蘭面應鏈接平整、密合、機殼內表面接頭處錯位偏差不超過2mm;
機殼法蘭間允許墊石棉帶,調整機殼和螺旋體長度的積累誤差;
LS型螺旋輸送以后,均應使之著實后再擰地腳螺栓。所有連接螺釘均應擰緊至可靠的程度;
LS型螺旋輸送機進出料口現場安裝應使進出料口的法蘭支撐面與螺旋機的本體的軸線平行,與相連接的法蘭應緊密貼合,不得有間隙;
LS型螺旋輸送機裝妥以后,應檢查各存油處是否有足夠的潤滑油,在進行連續4h以上的無負荷試車以后,應檢查螺旋機裝配的正確性,如果發現不應超過額定功率的30%;
除塵器在負壓下運行螺旋輸送機各連接處無明顯漏風。
煤顆粒專用LS型螺旋輸送機運行注意事項
1、LS型螺旋輸送機在開車前應認真檢查機槽內有無剩余粉塵和雜物,若有,則應及時清理干凈。此外還應檢修進出口是否暢通,如發現有堵塞現象,請及時清理干凈;
2、加料必須均勻,并保持一定的裝滿程度;
3、進料口應加篩網,嚴防金屬保證設備下一次啟動時能處于空載運行狀態;
6、當運行中途停機時,應盡可能卸凈機體內的物料未能及時排凈,此時若再次啟動出現困難時,需要將機體內的物料取出后才能啟動運行;
7、定期檢查螺旋葉片的磨損情況,當發現磨損嚴重時可采用補焊或更換新件。此外還應經常檢查軸承的磨損情況,發現問題及時更換;
8、輸送機的各潤滑部位應嚴格按要求進行潤滑,并經常保持輸送機內部軸承的潤滑油充足和定期更換;
9、LS型螺旋輸送機在運轉過程中,一旦發出刺耳的噪音時,應及時排查;
10、LS型螺旋輸送機兩頭軸承要嚴格密封,防止粉塵卡軸現象;
11、密切注意監視超過允許的溫度,大塊及含水量的物料進入機體,以防止損壞設備。
煤顆粒專用LS型螺旋輸送機技術參數
規格型號 | 100 | 160 | 200 | 250 | 315 | 400 | 500 | 630 | 800 | 1000 | 1250 |
螺旋直徑(mm) | 100 | 160 | 200 | 250 | 315 | 400 | 500 | 630 | 800 | 1000 | 1250 |
螺距(mm) | 100 | 160 | 200 | 250 | 250 | 355 | 400 | 450 | 500 | 560 | 630 |
轉速(r/min) | 140 | 112 | 100 | 90 | 80 | 71 | 63 | 50 | 40 | 32 | 25 |
輸送量(m3/h) | 2.2 | 7 | 13 | 22 | 31 | 62 | 98 | 140 | 200 | 280 | 380 |
轉速(r/min) | 112 | 90 | 80 | 71 | 63 | 56 | 50 | 40 | 32 | 25 | 20 |
輸送量(m3/h) | 1.7 | 6 | 10 | 18 | 24 | 49 | 78 | 112 | 160 | 220 | 306 |
轉速(r/min) | 90 | 71 | 63 | 56 | 50 | 45 | 40 | 32 | 25 | 20 | 16 |
輸送量(m3/h) | 1.4 | 5 | 8 | 14 | 19 | 39 | 62 | 90 | 126 | 176 | 245 |
轉速(r/min) | 71 | 50 | 50 | 45 | 40 | 36 | 32 | 25 | 20 | 16 | 13 |
輸送量(m3/h) | 1.1 | 3.1 | 6.2 | 11 | 15.4 | 31 | 50 | 77 | 102 | 140 | 198 |
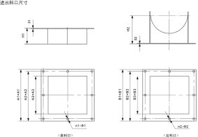
煤顆粒專用 LS螺旋輸送機尺寸圖



參數 | LS160 | LS200 | LS250 | LS315 | LS400 | LS500 | LS630 | LS800 | LS1000 | LS1250 |
A1 | 246 | 306 | 356 | 444 | 528 | 658 | 794 | 960 | 1160 | 1410*1160 |
A2 | 226 | 272 | 330 | 394 | 492 | 608 | 752 | 888 | 1090 | 1338*1090 |
A3 | 180 | 220 | 270 | 334 | 420 | 524 | 660 | 800 | 1000 | 1250*1000 |
H1 | 75 | 100 | 120 | 140 | 160 | 160 | 180 | 180 | 200 | 200 |
δ1 | 3 | 3 | 3 | 4 | 4 | 4 | 6 | 6 | 8 | 8 |
n1 | 8 | 8 | 8 | 8 | 8 | 8 | 8 | 16 | 20 | 22 |
φ1 | 9 | 9 | 9 | 13 | 13 | 13 | 17 | 14 | 18 | 18 |
B1 | 252 | 312 | 374 | 442 | 540 | 666 | 806 | 960 | 1160 | 1410*1160 |
B2 | 226 | 272 | 330 | 402 | 496 | 608 | 752 | 888 | 1090 | 1338*1090 |
B2 | 186 | 226 | 276 | 342 | 432 | 532 | 668 | 800 | 1000 | 1250*1000 |
H2 | 135 | 165 | 195 | 225 | 280 | 340 | 430 | 520 | 630 | 760 |
δ2 | 3 | 3 | 4 | 4 | 4 | 4 | 6 | 6 | 8 | 8 |
n2 | 8 | 8 | 8 | 8 | 8 | 8 | 8 | 16 | 20 | 22 |
φ2 | 9 | 9 | 9 | 13 | 163 | 17 | 17 | 14 | 18 | 18 |
R | 93 | 113 | 138 | 171 | 216 | 266 | 334 | 419 | 522 | 647 |